Your Custom Text Here
BYA                                                                       122 m²
BRA                                                                        95 m²
Tilleggsareal: Utebod                                         5 m²
Fjell 95 er ein luftig fritidsbustad i massivtre med store vindusareal som gir full utsikt frå opphaldsrommet i front. I tillegg er det tre soverom, bad med vaskerom, bod og utebod. Inngangspartiet med utebod er godt overbygd og kan også speilvendast til å ligge ved sidan av den overbygde terrassen.
Tradisjonell saltaksform gjer at bygningskroppen ligg godt i terrenget og kan byggast på dei fleste tomter.
BYA inkl. carport:                                                 150 m²
BRA .                                                                          97 m²
Tilleggsareal: carport og overbygd bod       30 m²
Fjell 97 er ein luftig fritidsbustad i massivtre med store vindusareal som gir full utsikt frå opphaldsrommet i front. I tillegg er det tre soverom, bad med vaskerom, bod og utebod. Inntil bygningskroppen ligg ein carport som er med på å dempe uttrykket.
Denne moderne fritidsbustaden kan også leverast som ein rimeleg einebustad med alle dei gode eigenskapane massivtre gir!
BYA inkl. carport:                                                 138 m²
BRA 1. og 2.etg                                                     130 m²
Tilleggsareal: carport og overbygd bod       45 m²
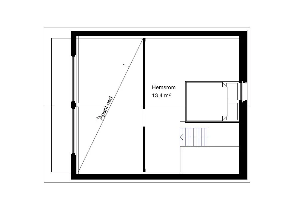
Fjell 130 er ein luftig fritidsbustad i massivtre med store vindusareal som gir full utsikt frå opphaldsrommet i front. I tillegg er det fire soverom, bad, vaskerom, bod og hall, fordelt over to plan, noko som gir ei hytte som fyller dei fleste behov. Bygningskroppen er trappa inn i terrenget og er tilpassa bratt skråande terreng utan å gi for store naturinngrep.
Utbredt bruk av synleg massivtre gir ein fin kombinasjon mellom det moderne og det tradisjonelle.
Bilete: https://www.emdalbygg.no/prosjekter#/hytte-oggardslia
BYA:                         104,6 m²
BRA 1.etg                      82m²
Bilete: https://www.emdalbygg.no/prosjekter#/hytte-skarvegen
BYA                                                                        106,5 m²
BRA                                                                             80 m²
Tilleggsareal: Utebod                                              3 m²
BYA: 37,1 m²
BRA: 30,0 m²